.post-meta { display:none; }

Bible Baptist Church – Pine Ridge Blvd & Mustang

To our Pine Ridge neighbors,

We want to personally introduce ourselves and share our heart, our history, and our plans for the property at the corner of Pine Ridge Boulevard and Mustang.

Who We Are

Bible Baptist Church of Crystal River has served Citrus County since 1978. For over four decades, our church family has been part of this community — worshiping, serving, raising families, and supporting local outreach efforts.

Due to the expansion of the Suncoast Parkway, our previous church property was taken for the highway project. This required us to relocate. After careful consideration, we obtained approximately 10 acres within Pine Ridge with the goal of building our new church home here.

Our church is a local, independent congregation focused on Bible teaching, family ministry, and community outreach. We are not a commercial enterprise, and we are not a high-traffic event center. We are simply a group of local families from Pine Ridge and Citrus County who gather for worship, prayer, and service.

Addressing Recent Concerns

We understand that the recent clearing of trees and large-scale dirt work has caused concern for some residents.

Please know:

  • The clearing was necessary to properly level the property and prepare a safe, stable building site.
  • Significant grading is required to meet county drainage, safety, and construction standards.
  • The current appearance is temporary and represents an early phase of development — not the final result.

We truly understand how seeing heavy equipment and open land can be unsettling, especially in a wooded community like Pine Ridge. We appreciate your patience during this construction phase.

Our Landscaping Commitment

We want to be very clear:
The final property will be heavily landscaped and designed to blend beautifully with Pine Ridge.

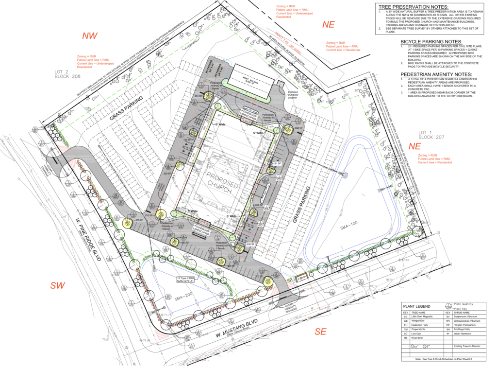
Our approved landscape plan (attached) includes:

  • Over 518 trees and shrubs to replace those that were selectively removed for clearing and construction.
  • An all-natural 30-foot buffer will not be removed and shall remain adjacent to the existing horse riding trail, as well as along the NE and NW perimeters of the property
  • Grass-covered parking areas (not large asphalt expanses)
  • Preserved green space
  • Thoughtful drainage and erosion control
  • A campus design that maintains the character of Pine Ridge

This will not be a concrete parking lot environment. Our goal is for the property to feel natural, open, and well-maintained.

 

Click here to see the full size image

Timeline

Construction and landscaping are expected to take approximately 12 months from start to finish.

During that time, there will be phases that look unfinished — because they are. But what you are seeing today is not what the finished campus will look like.

We are committed to completing the landscaping fully and professionally.

Traffic & Use

We know traffic is a common concern.

Our primary service times are:

  • Sunday mornings
  • Sunday evenings
  • Wednesday evenings

Outside of those times, the property will generally be quiet.

The church operated on Lecanto its entire life and has not caused traffic issues in the past but we will looking to minimize as much as possible on both Pine Ridge and Mustang.

We are not planning large commercial events, festivals, or constant weekday traffic. The church will function primarily as a place of worship for local families.

Our Commitment to Pine Ridge

We want to be good neighbors.

We are committed to:

  • Maintaining the property beautifully
  • Keeping landscaping healthy and trimmed
  • Operating respectfully within HOA and county guidelines
  • Being approachable and open to conversation

If you ever have questions or concerns, we welcome direct communication. We would rather have a conversation than allow misunderstandings to grow.

Looking Ahead

Change can be difficult. We understand that.

But our sincere hope is that, in time, our presence here will be viewed as a positive addition to the Pine Ridge community — a quiet, well-maintained property where families gather, children grow, and neighbors are welcomed.

We appreciate your patience during construction and look forward to being part of this community for many years to come.

With respect,

Bible Baptist Church of Crystal River
Pine Ridge Blvd & Mustang
(352) 795-4389

Stay in Touch

Want to be in the know for the Neighborhood? 😎

We don’t spam! Read our privacy policy for more info.